Zapraszamy do zapoznania się z ofertą niepowtarzalnej nieruchomości zlokalizowanej w jednej z najbardziej urokliwych miejscowości Pomorza Zachodniego – Bornem Sulinowie.
To miejsce, gdzie historia spotyka się z nowoczesnością, a codzienne życie toczy się w rytmie natury.
Inwestycja znajduje się na rozległej, ogrodzonej działce o powierzchni 4230 m², przeznaczonej do wspólnego korzystania przez mieszkańców – to idealna przestrzeń do wypoczynku, rekreacji i kontaktu z naturą.
Szczegóły oferty
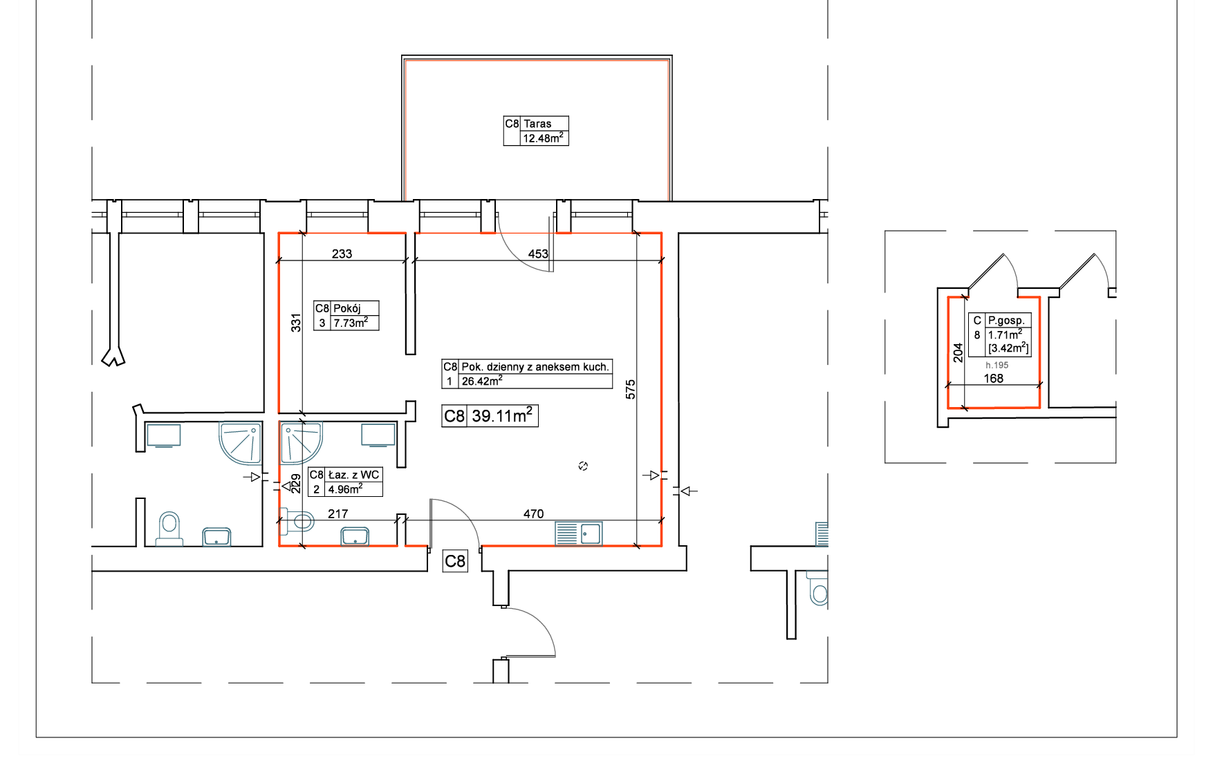
Na sprzedaż oferowany jest apartament przy ul. Fryderyka Chopina 5C/8, położony na pierwszym piętrze, o łącznej powierzchni 39,11 m². Dodatkowo do mieszkania przynależy:
- słoneczny taras o powierzchni 12,48 m²,
- komórka lokatorska o pow. 3,42 m²,
- indywidualne miejsce postojowe na ogrodzonym, monitorowanym terenie – dostęp przez bramę sterowaną pilotem.
To idealne miejsce dla osób szukających komfortu, ciszy i bliskości natury, bez rezygnacji z nowoczesnych udogodnień.
Układ mieszkania:
- Pokój dzienny z aneksem kuchennym – 26,42 m² – przestronna, jasna strefa dzienna z miejscem na wypoczynek i wspólne posiłki,
- Sypialnia – 7,73 m² – przytulne, ciche wnętrze idealne do relaksu,
- Łazienka z WC – 4,96 m² – nowoczesna i funkcjonalna,
- Taras – 12,48 m² – idealny na poranną kawę, wieczorne rozmowy lub odpoczynek na świeżym powietrzu.
W mieszkaniu zastosowano wysokiej klasy trzyszybowe okna i drzwi balkonowe, zapewniające doskonałą izolację termiczną i akustyczną.
Całość ogrzewana jest nowoczesnym ogrzewaniem podłogowym zasilanym z sieci miejskiej – ciepła woda również pochodzi z sieci, co zapewnia wygodę i niskie koszty eksploatacyjne.
Ściany wykończone są gładzią, co pozwala na łatwą aranżację wnętrz według własnego stylu.
Do mieszkania prowadzi czysta i przestronna klatka schodowa z dwoma niezależnymi wejściami – jedno od strony ulicy, drugie od strony działki, gdzie znajdują się miejsca parkingowe oraz część rekreacyjna.
Opłaty miesięczne wynoszą 215 zł (ogrzewanie rozliczane ryczałtowo 157 zł czyli 4 zł/m2 oraz eksploatacja 58 zł czyli 1,50 zł/m2), dodatkowo trzeba doliczyć zużycie wody oraz wywóz nieczystości od osób zamieszkałych.
Lokalizacja – serce Bornego Sulinowa
Borne Sulinowo to niezwykła, leśna miejscowość o bogatej historii i niesamowitym klimacie. Położona nad malowniczym jeziorem Pile o powierzchni 1002 ha, oferuje mieszkańcom spokój, świeże powietrze i bezpośredni kontakt z naturą.
Miasto słynie z pięknych, zalesionych terenów, ścieżek spacerowych, tras rowerowych i możliwości uprawiania sportów wodnych, takich jak kajakarstwo czy żeglarstwo.
To również miejsce o ciekawej historii militarnej – co roku odbywa się tu Międzynarodowy Zlot Pojazdów Militarnych, przyciągający pasjonatów z całego świata.
W zasięgu 20 km znajdują się dwa większe miasta – Szczecinek i Czaplinek, co sprawia, że lokalizacja jest idealna zarówno jako miejsce do zamieszkania na stałe, jak i jako inwestycja wakacyjna czy pod wynajem krótkoterminowy.
Zapraszamy do kontaktu, a chętnie odpowiemy na dodatkowe pytania oraz umówimy termin prezentacji nieruchomości.
Przedstawione informacje zostały opracowane na podstawie danych uzyskanych od Zamawiającego, mogą różnić się od stanu faktycznego i w każdej chwili mogą ulec zmianie. Oferta nie jest ofertą w rozumieniu przepisów Kodeksu Cywilnego i ma charakter wyłącznie informacyjny.